Document Description

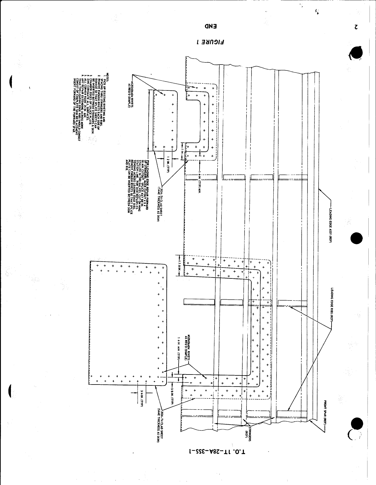
Safety Supplement Structural Repair Tech Manual, T-28A T-28B T-28C T-28D, 1T-28A-3SS-1, 7-Oct-1965

Document Part Number

1T-28A-3SS-1

Document Revision Date

7-Oct-1965

Already a Member?

Sign in to read this full document


Become a member

To access this and thousands of other manuals, plus over 400,000 warbird engineering drawings!

JOIN NOW


Don't want to join?

No problem - Click below to purchase a digital download of this manual from our storefront!

PURCHASE NOW

Sample Page: 1 of 8